Okkenbroekstraat 10
8112 AK Nieuw heeten
€ 379.500,- k.k.
114 m2
448 m2
3
D
Deze twee-onder-één-kapwoning is gelegen op een zeer royale kavel van maar liefst 448m²! Het beschikt tevens over een ruime vrijstaande garage, met berging. De woning biedt alle mogelijkheden om helemaal naar eigen smaak te verbouwen tot jouw eigen droomhuis, waardoor er een moderne woning ontstaat op een prachtig perceel!
Indeling
Begane grond
Entree/hal, toegang tot het toilet, de meterkast, kelder en de keuken. Vanuit de keuken bereik je ook de achtertuin. De ruime woonkamer beschikt over grote ramen waardoor er veel natuurlijk daglicht binnen komt. Je hebt zicht op de straat aan de voorzijde en de tuin aan de achterzijde. Een impressie in de presentatie geeft een indruk hoe mooi de woonkamer verbouwd kan worden.
Eerste verdieping
Op de eerste verdieping zijn drie slaapkamers te vinden die allemaal voorzien zijn van vaste kasten. De badkamer is voorzien van een toilet, een wastafel, een douche en een bad.
Tweede verdieping
De tweede verdieping is bereikbaar met een vaste trap. Deze ruimte is op dit moment een open ruimte, ideaal voor het opslaan van spullen. Het biedt de mogelijkheid om een vierde slaapkamer te creëren.
Tuin
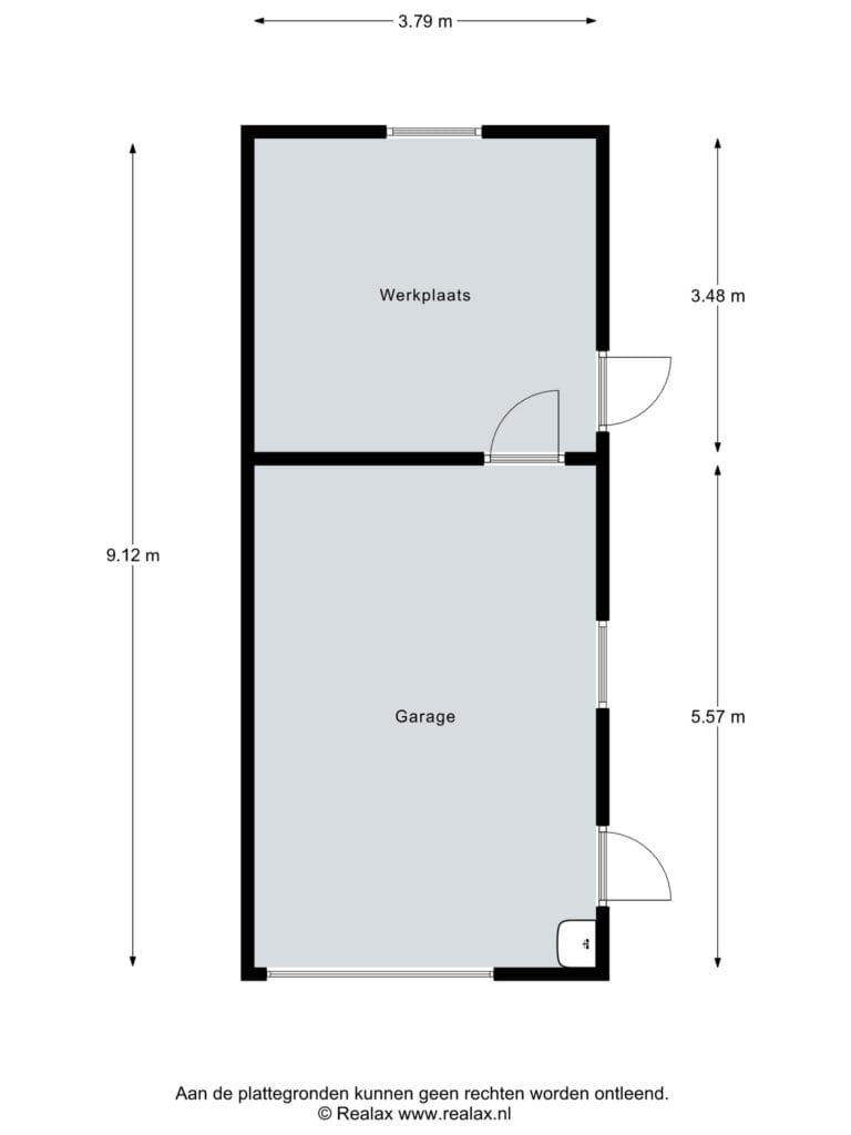
De woning beschikt aan de voorkant over een zeer ruime oprit, dat parkeerruimte biedt voor meerdere auto’s. De achtertuin is gelegen op het westen en is netjes onderhouden. De tuin heeft alle ruimte om een plekje in de zon of schaduw te kiezen. Vanuit de tuin heb je toegang tot de ruime garage en berging/werkplaats. Ideaal voor het opslaan van spullen of voor een hobby die wat meer ruimte vergt.
Bouwtechnische keuring
De woning heeft veel potentie. Om de huidige staat van de woning in kaart te brengen en kandidaat-kopers te helpen bij het aankoopproces, heeft verkoper alvast een bouwtechnische keuring laten uitvoeren. Deze is in te zien voor iedereen die een bezichtiging heeft.
Kenmerken
– Woonoppervlakte: circa 114 m²
– Inhoud: circa 419 m³
– Perceeloppervlakte: 448 m²
– Bouwjaar: 1968
– Energielabel D. Toepassing van lichte dakisolatie en dubbel glas.
Wil je graag de mogelijkheden van deze woning met eigen ogen zien? Plan dan vandaag nog een bezichtiging in!
Deze woning heeft een eigen woningwebsite; okkenbroekstraat10.nl
Overdracht
- Aanvaarding
- In overleg
- Vraagprijs
- € 379.500,- k.k.
- Vraagprijs per m²
- € 3.329 per m²
- Status
- Beschikbaar
Bouw
- Bouwvorm
- Bestaande bouw
- Bouwjaar
- 1968
- Dak type
- Zadeldak
- Dak materialen
- Pannen
- Soort woonhuis
- Eengezinswoning, Twee onder één kapwoning
Oppervlakten en inhoud
- Woonoppervlakte
- 114 m2
- Buitenruimtes gebouwgebonden of vrijstaand
- 12 m2
- Oppervlakte externe bergruimte
- 34 m2
- Perceel oppervlakte
- 448 m2
- Inhoud
- 419 m3
Indeling
- Aantal kamers
- 5 ( 3 slaapkamers)
- Aantal badkamers
- 1
- Voorzieningen
- Buitenzonwering, Rookkanaal, Glasvezel kabel
Energie
- Energieklasse
- D
- Isolatievormen
- Dakisolatie, Dubbelglas
- Soorten verwarming
- CV ketel
Buitenruimte
- Liggingen
- In woonwijk
- Tuintypen
- Achtertuin, Voortuin, Zijtuin
- Oppervlakte
- 233 m2
- Lengte
- 1.500 m
- Breedte
- 1.550 m
- Positie
- West
Garage
- Soorten
- Vrijstaand steen
Parkeergelegenheid
- Parkeer faciliteiten
- Op eigen terrein
Geïnteresseerd in deze woning?
Neem vrijblijvend contact met ons op
Locatie
Geïnteresseerd in deze woning?
Neem vrijblijvend contact met ons op
0572-351291
info@hannink.nl