Fortmonderweg 10
8121 SK Olst
€ 645.000,- k.k.
105 m2
2610 m2
3
A
Wonen en genieten in de natuur, tussen Zwolle en Deventer, met eindeloos uitzicht!
Deze vrijstaande woning met gastenverblijf aan de doodlopende Fortmonderweg ligt in buurtschap Fortmond. Een fantastische omgeving met uitgestrekte weiden en dichtbij het natuurgebied Duursche Waarden, met Schotse hooglanders, IJslandse paarden en unieke flora en fauna.
Vlakbij de oude steenfabriek, Het Kozakkenveer, een voetgangers/fietspontje welke je naar Veessen brengt en van waaruit je met tien minuten fietsen op de Veluwe bent.
De woning:
De woning is in 2002 gebouwd, in 2021 grotendeels gemoderniseerd, goed geïsoleerd, energielabel A.
De begane grond is geheel voorzien van een moderne gietvloer met vloerverwarming.
De keuken is in 2021 vernieuwd.
2022 zijn er 10 zonnepanelen geplaatst.
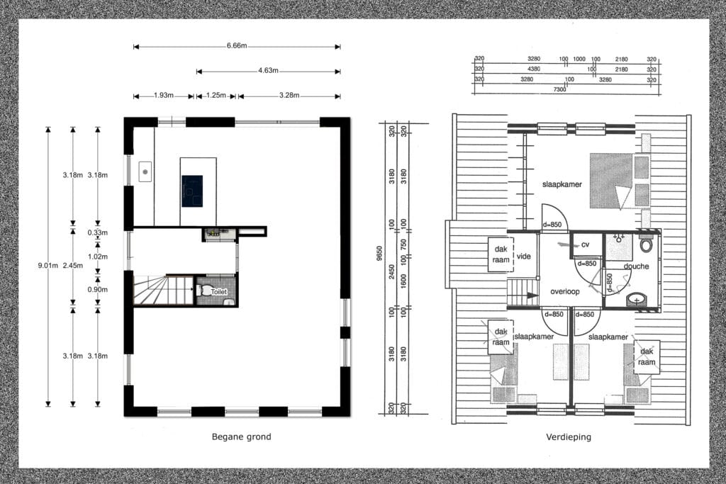
Kom binnen: hal, trapkast, toilet, meterkast, woonkamer met open keuken.
Trap op: bergkast met CV installatie, drie kamers en kleine maar volledig badkamer.
Via vlizotrap naar bergruimte onder de kap.
Op de ruim 2.600 m² kavel staat nog een gebouw, verdeeld in fietsen-, gereedschap schuur en een compleet ingericht gastenverblijf met omgevingsvergunning voor recreatief overnachten.
Ondanks links en rechts buren, ervaar je volop privacy met voor en achter de woning een fantastisch vergezicht, ieder uur adembenemende luchten (zie foto’s!), vele vogelsoorten, schapen en reeën.
De woning, de plek, het buurtschap, een unieke beleving welke nauwelijks goed te omschrijven is, maar deze alleen kan ervaren door te komen proeven!
Kenmerken:
– Woonoppervlakte ca. 105 m²
– Oppervlakte gastenverblijf ca. 33 m² (begane grond en verdieping)
– Fietsenberging ca. 12,5 m²
– Gereedschapschuur ca. 8,5 m²
– Inhoud woning ca. 338 m3
– Perceeloppervlakte 2.610 m²
Gewenste datum aanvaarding in overleg.
Overdracht
- Aanvaarding
- Per datum
- Vraagprijs
- € 645.000,- k.k.
- Vraagprijs per m²
- € 6.143 per m²
- Status
- Beschikbaar
Bouw
- Bouwvorm
- Bestaande bouw
- Bouwjaar
- 2002
- Dak type
- Schilddak
- DakMaterialen
- Soort woonhuis
- Eengezinswoning, Vrijstaande woning
Oppervlakten en inhoud
- Woonoppervlakte
- 105 m2
- Buitenruimtes gebouwgebonden of vrijstaand
- 0 m2
- Oppervlakte externe bergruimte
- 40 m2
- Perceel oppervlakte
- 2.610 m2
- Inhoud
- 338 m3
Indeling
- Aantal kamers
- 4 ( 3 slaapkamers)
- Aantal badkamers
- 1
- Voorzieningen
- Mechanische ventilatie, Schuifpui, Dakraam, Glasvezel kabel
Energie
- Energieklasse
- A
- Isolatievormen
- Dakisolatie, Muurisolatie, Vloerisolatie, Dubbelglas
- Soorten verwarming
- CV ketel
Buitenruimte
- Liggingen
- Aan rustige weg, Vrij uitzicht, Buiten bebouwde kom
- Tuintypen
- Tuin rondom
- Oppervlakte
- Lengte
- Breedte
- Positie
Bergruimte
- Soort
- Vrijstaand steen
- Voorzieningen
- Voorzien van verwarming, Voorzien van elektra, Voorzien van water, Met vliering
Garage
- Soorten
- Geen garage
Parkeergelegenheid
- Parkeer faciliteiten
- Op eigen terrein
Geïnteresseerd in deze woning?
Neem vrijblijvend contact met ons op
Locatie
Geïnteresseerd in deze woning?
Neem vrijblijvend contact met ons op
0572-351291
info@hannink.nl