Baeckenhagen 15
8103 HV Raalte
€ 629.500,- k.k.
202 m2
374 m2
5
A
Ben je op zoek naar een zeer royale woning, met veel slaapkamers, een grote woonkeuken en een riante tuin? Zoek dan niet verder, want de Baeckenhagen 15 heeft het allemaal. Deze woning beschikt namelijk over ca. 202 m² woonoppervlakte, vijf slaapkamers, een royale woonkeuken en gelegen op een perceel van 374 m², waardoor ook de achtertuin een goed formaat heeft. Combineer dat ook nog eens met een goed energielabel A én de ligging in een fijne, rustige en kindvriendelijke woonwijk. Alles bij elkaar opgeteld beschikt de woning dus over veel positieve punten!
Indeling
Begane grond
Royale entree/hal, toegang tot het toilet, de meterkast, de garage, de woonkamer en de keuken. De woonkamer en de keuken zijn het hart van het huis. De woonkamer is aan de voorzijde gesitueerd en kijkt mooi uit over de wadi. Je hebt hier alle ruimte voor een royale zithoek. De gashaard maakt het sfeervolle plaatje af. Middels en-suite deuren heb je toegang tot de woonkeuken aan de achterzijde van de woning. Je hebt hier alle ruimte om met een groot gezelschap te tafelen. De keuken zelf heeft een verzorgde uitstraling en beschikt over diverse (vernieuwde) inbouwapparatuur: inductiekookplaat (2020), vaatwasser, koelkast (2020) en een oven (2023). Vanuit de keuken heb je toegang tot de bijkeuken. Deze is ook ruim opgezet en beschikt over de wasmachine- en drogeraansluiting. Vanuit hier bereik je de inpandige garage en de kelder. Beide ruimten zijn ideale ruimten voor het opslaan van spullen.
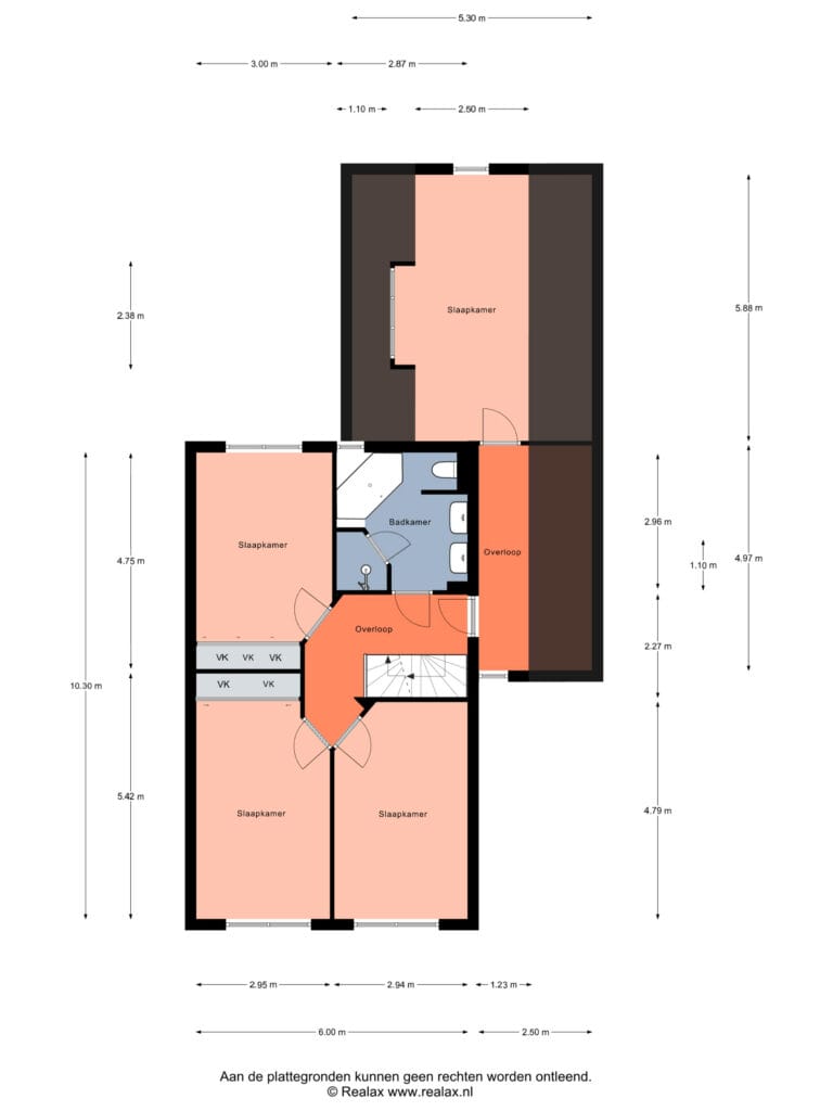
Eerste verdieping
Overloop, toegang tot de badkamer en vier slaapkamers, waarbij met name de kamer boven de garage positief in het oog springt qua ruimte. De lange hal naar deze kamer toe biedt ook nog eens extra opbergruimte. De badkamer beschikt over alles wat je wenst: een bad, toilet, dubbele wastafel en douche.
Tweede verdieping
Via een vaste trap bereik je de overloop en de vijfde slaapkamer. Ook hier alle ruimte om spullen op te bergen of extra plek voor hobby’s die ruimte vergen.
Tuin
De tuin is verzorgd aangelegd en is gelegen op het noorden. Door de diepte en de breedte kan je altijd wel een plekje in de zon of schaduw vinden. Het beschikt verder over een houten schuur met overkapping.
Kenmerken
– Woonoppervlakte: circa 202 m²
– Inhoud: circa 828 m³
– Perceeloppervlakte: 374 m²
– Bouwjaar: 2004
– Volledig geïsoleerd en 10 zonnepanelen: energielabel A.
– In 2023 het buitenschilderwerk uitgevoerd.
– Deels vloerverwarming op de begane grond.
– Aanvaarding is in overleg, maar voorkeur voor begin juni.
We kunnen wel concluderen dat er niet vaak zo’n grote twee-onder-één-kapwoning op de markt komt. En ook nog eens gelegen in één van de meest geliefde wijken van Raalte. Wij worden hartstikke enthousiast van deze woning! Jij ook? Kom dan zeker bezichtigen.
Overdracht
- Aanvaarding
- In overleg
- Vraagprijs
- € 629.500,- k.k.
- Vraagprijs per m²
- € 3.116 per m²
- Status
- Verkocht onder voorbehoud
Bouw
- Bouwvorm
- Bestaande bouw
- Bouwjaar
- 2004
- Dak type
- Schilddak
- Dak materialen
- Pannen
- Soort woonhuis
- Eengezinswoning, Twee onder één kapwoning
Oppervlakten en inhoud
- Woonoppervlakte
- 202 m2
- Buitenruimtes gebouwgebonden of vrijstaand
- 23 m2
- Oppervlakte externe bergruimte
- 9 m2
- Perceel oppervlakte
- 374 m2
- Inhoud
- 828 m3
Indeling
- Aantal kamers
- 6 ( 5 slaapkamers)
- Aantal badkamers
- 1
- Voorzieningen
- Dakraam, Zonnepanelen
Energie
- Energieklasse
- A
- Isolatievormen
- Dakisolatie, Muurisolatie, Vloerisolatie
- Soorten verwarming
- CV ketel, Vloerverwarming gedeeltelijk, Warmte terugwininstallatie
Buitenruimte
- Liggingen
- In woonwijk
- Tuintypen
- Achtertuin, Voortuin
- Oppervlakte
- 180 m2
- Lengte
- 1.800 m
- Breedte
- 1.000 m
- Positie
- Noord
Bergruimte
- Soort
- Vrijstaand hout
- Voorzieningen
Garage
- Soorten
- Inpandig, Carport
Parkeergelegenheid
- Parkeer faciliteiten
- Op eigen terrein
Geïnteresseerd in deze woning?
Neem vrijblijvend contact met ons op
Locatie
Geïnteresseerd in deze woning?
Neem vrijblijvend contact met ons op
0572-351291
info@hannink.nl