de Haar 1
8101 ZJ Raalte
€ 449.500,- k.k.
116 m2
283 m2
4
B
Ben je op zoek naar een instapklare, sfeervolle en gemoderniseerde twee-onder-één-kapwoning met carport, garage, energielabel B en ligging op loopafstand van het centrum?
Dan zit je goed aan de Haar 1!
Deze woning ligt op een ruim perceel van 283 m², is volledig geïsoleerd en het buitenschilderwerk is in de zomer van 2025 uitgevoerd.
De huidige eigenaren hebben het huis met veel aandacht en zorg gemoderniseerd, wat zorgt voor een strakke afwerking en diverse extra’s.
Plan snel een bezichtiging en we laten je graag deze mooie woning zien!
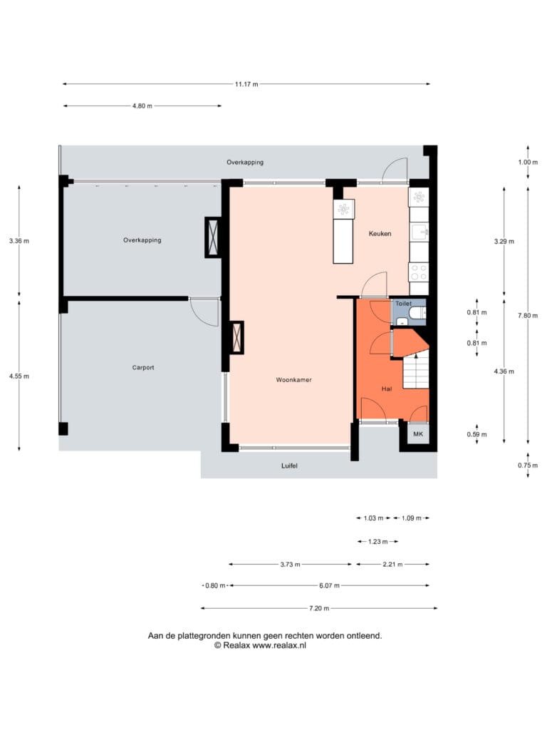
Indeling
Begane grond
Overdekte entree met luifel. Hal met vernieuwde meterkast, trapkast en toiletruimte met hangend toilet en fonteintje. De lichte woonkamer is afgewerkt met een pvc-vloer, beschikt over een houtkachel en is voorzien van een screen en rolluik. Aan de achterzijde is plek voor een royale eethoek. De open keuken is modern en voorzien van diverse inbouwapparatuur en quooker. Via de keuken toegang tot de achtertuin.
1e verdieping
Overloop met toegang tot drie ruime slaapkamers, waarvan de twee grootste slaapkamers zijn voorzien van vaste kasten. De badkamer is modern uitgevoerd met een inloop-/regendouche, dubbele wastafel, vloerverwarming en ingebouwde radio. Daarnaast bevindt zich op deze verdieping een aparte toiletruimte met hangend toilet en fonteintje.
2e verdieping
Overloop met een ruime extra bergruimte, een praktische waskamer met keukenblok, aansluiting voor de wasmachine, cv-opstelling en bergruimte achter de knieschotten. Daarnaast vind je op deze etage een ruime vierde slaapkamer met een inbouwkast en extra bergruimte achter de knieschotten.
Tuin
Niet alleen de woning is mooi en zorgvuldig afgewerkt. Dat geldt ook voor het perceel en de tuin. Naast de ruime carport/overkapping en garage is er een verrijdbare vlonder, waaronder ruimte is gecreëerd voor bijvoorbeeld een hottub, extra opslag, unit van een warmtepomp of een zandbak/trampoline. De verlichting in de overstekken zorgt ’s avonds voor een luxe en sfeervolle uitstraling. De ruime oprit biedt plek voor twee auto’s en is voorzien van een krachtstroompunt in de pilaar, waardoor eenvoudig een laadpaal voor een elektrische auto kan worden gerealiseerd.
De woning heeft:
• Energielabel B en volledig geïsoleerd
• Vloerverwarming op de gehele begane grond
• Strakke afwerking met ingefreesd leidingwerk
• Moderne badkamer uit 2021 met vloerverwarming
• Ruime oprit voor 2 auto’s
• Een garage
• Tuin met zon in de ochtend, middag en begin van de avond
• Schilderwerk buiten uitgevoerd in zomer 2025
Deze woning heeft een eigen woningwebsite; dehaar1raalte.nl
Overdracht
- Aanvaarding
- In overleg
- Vraagprijs
- € 449.500,- k.k.
- Vraagprijs per m²
- € 3.875 per m²
- Status
- Beschikbaar
Bouw
- Bouwvorm
- Bestaande bouw
- Bouwjaar
- 1974
- Dak type
- Zadeldak
- Dak materialen
- Pannen
- Soort woonhuis
- Eengezinswoning, Twee onder één kapwoning
Oppervlakten en inhoud
- Woonoppervlakte
- 116 m2
- Buitenruimtes gebouwgebonden of vrijstaand
- 55 m2
- Oppervlakte externe bergruimte
- 40 m2
- Perceel oppervlakte
- 283 m2
- Inhoud
- 401 m3
Indeling
- Aantal kamers
- 5 ( 4 slaapkamers)
- Aantal badkamers
- 1
- Voorzieningen
- Rolluiken, Rookkanaal, Dakraam
Energie
- Energieklasse
- B
- Isolatievormen
- Dakisolatie, Muurisolatie, Vloerisolatie, Dubbelglas, Volledig geïsoleerd
- Soorten verwarming
- CV ketel, Vloerverwarming gedeeltelijk, Houtkachel
Buitenruimte
- Liggingen
- In woonwijk
- Tuintypen
- Achtertuin, Voortuin, Zijtuin
- Oppervlakte
- 83 m2
- Lengte
- 750 m
- Breedte
- 1.100 m
- Positie
- Oost
Garage
- Soorten
- Vrijstaand steen, Carport
Parkeergelegenheid
- Parkeer faciliteiten
- Op eigen terrein
Geïnteresseerd in deze woning?
Neem vrijblijvend contact met ons op
Locatie
Geïnteresseerd in deze woning?
Neem vrijblijvend contact met ons op
0572-351291
info@hannink.nl