Verkocht onder voorbehoud

de Havezathe 1

8101 XZ Raalte

€ 660.000,- k.k.

160 m2

820 m2

4

C

Aan een fijne rustige en verkeersluwe straat, op een gewild plekje in Raalte, ligt deze royale semi-bungalow op een bijzonder ruim perceel van maar liefst 820 m². Een unieke combinatie van wonen op korte afstand van het centrum, maar met volop rust en privacy.

Deze semi-bungalow biedt het beste van twee werelden: gelijkvloers wonen maar ook volop ruimte voor het hele gezin. Op de begane grond bevinden zich een slaapkamer met moderne badkamer, een werkkamer en een woonkamer met parketvloer en open haard. De grote raampartijen vanuit de eetkamer en fraaie hooggeplaatste ramen in de woonkamer zorgen voor veel licht en een prachtig uitzicht op de groene tuin, terwijl de indeling veel privacy biedt.

De woonkeuken is het hart van het huis – vernieuwd in 2017- en uitgerust met diverse inbouwapparatuur. Via de eetkamer, met stroken parketvloer, loopt u zo de zonnige tuin in. Verder vindt u op de begane grond een vernieuwde toiletruimte (2016), een praktische bijkeuken met aansluiting voor wasmachine en droger, én een garage van ca. 25 m² met elektrische deur en achterdeur, welke via de werkkamer bereikbaar is.

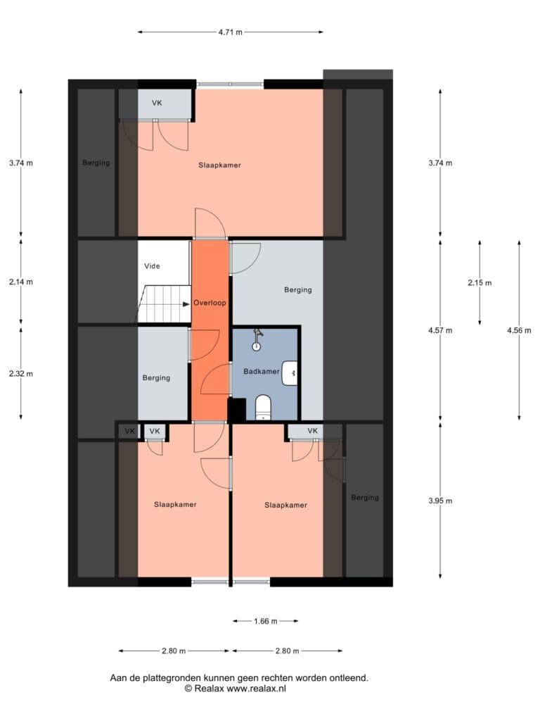
Bovenverdieping
De verdieping beschikt over een royale overloop met vide, drie (slaap)kamers met voorraadkast, een tweede badkamer en extra bergkamers. Eén van de (slaap)kamers is bereikbaar via een andere, ideaal als kinderkamer of hobbyruimte maar ook eenvoudig 2 volwaardige kamers van te maken.

Buitenleven
De fraai aangelegde tuin ligt rondom de woning, met volop zon en schaduwplekken. De achtertuin biedt veel privacy en is uitgerust met twee robotmaaiers, buitenkraan, grondwaterpomp en een terras (aangelegd in 2022). Aan de voorzijde is ruimte om royaal op eigen terrein te parkeren.

Omgeving
De woning ligt in een rustige, groene woonwijk. In de directe omgeving bevindt zich ook een speeltuintje, ideaal voor (klein)kinderen.

Pluspunten op een rij:
• Woonoppervlakte ca. 160 m², inhoud ca. 594 m³
• Perceel van 820 m²
• Dak-, muur- en vloerisolatie en dubbele beglazing op de begane grond waarbij de muren en de vloer zijn nageïsoleerd.
• Energielabel C
• Slaapkamer, badkamer en werkkamer op de begane grond
• Garage met elektrische deur en aardappelkeldertje
• Goed onderhouden, onderhoudsarme topgevels (keralyt)
• Rustige ligging nabij het centrum van Raalte
• Alarminstallatie aanwezig
• Platte daken vervangen
• Leien dak in de loop der tijd ook al eens vervangen

Een ideale woning voor wie comfort, ruimte en toekomstbestendig wonen belangrijk vindt.

Meer informatie en extra foto’s vindt u op de eigen website: dehavezathe1.nl.

Overdracht

Aanvaarding
In overleg
Vraagprijs
€ 660.000,- k.k.
Vraagprijs per m²
€ 4.125 per m²
Status
Verkocht onder voorbehoud

Bouw

Bouwvorm
Bestaande bouw
Bouwjaar
1977
Dak type
Zadeldak
Dak materialen
Pannen
Soort woonhuis
Bungalow, Vrijstaande woning

Oppervlakten en inhoud

Woonoppervlakte
160 m2
Buitenruimtes gebouwgebonden of vrijstaand
7 m2
Oppervlakte externe bergruimte
0 m2
Perceel oppervlakte
820 m2
Inhoud
594 m3

Indeling

Aantal kamers
6 ( 4 slaapkamers)
Aantal badkamers
2
Voorzieningen
alarminstallatie, Buitenzonwering, Rookkanaal, Glasvezel kabel

Energie

Energieklasse
C
Isolatievormen
Dakisolatie, Muurisolatie, Vloerisolatie, Gedeeltelijk dubbelglas
Soorten verwarming
CV ketel, Open haard

Buitenruimte

Liggingen
In woonwijk
Tuintypen
Tuin rondom
Oppervlakte
Lengte
Breedte
Positie

Garage

Soorten
Aangebouwd steen

Parkeergelegenheid

Parkeer faciliteiten
Op eigen terrein

Geïnteresseerd in deze woning?

Neem vrijblijvend contact met ons op

Plattegrond

Video

Speel video

360°

Kadastraal

Locatie

Geïnteresseerd in deze woning?

Neem vrijblijvend contact met ons op

0572-351291

info@hannink.nl