Verkocht onder voorbehoud

Deventerstraat 21

8102 GA Raalte

€ 425.000,- k.k.

91 m2

m2

2

A

Ruim 3-kamerappartement (ca. 91 m²) met balkon, tuin, berging, vloerverwarming en op loopafstand van het centrum!

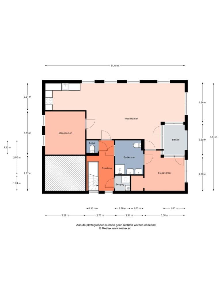
Op een toplocatie, op loopafstand van het gezellige centrum van Raalte, ligt dit ruime en instapklare 3-kamerappartement op de eerste verdieping. Het appartement maakt deel uit van een kleinschalig appartementencomplex (slechts 3 appartementen) dat in 2020 volledig is gerenoveerd. Met onder andere twee slaapkamers, een balkon (ca. 5 m²) op het westen, een privé tuin (ca. 20 m²) op de begane grond, energielabel A, vloerverwarming en een eigen entree, is dit een heerlijke plek om comfortabel te wonen.
Extra fijn: het balkon ligt op het westen en de tuin op het oosten. Zo is er op elk moment van de dag een fijne plek om buiten te zitten

Indeling
Begane grond
Eigen entree met meterkast en trapopgang. Op de begane grond bevindt zich tevens de privé tuin aan de achterzijde van het gebouw en een eigen fietsenberging van ca. 9 m².

Eerste verdieping
Hal met toegang tot toilet, berging, woonkamer en badkamer. De praktische berging heeft een aansluiting voor wasmachine en opstelling van de cv-ketel. Separaat toilet.
De ruime woonkamer met open keuken (samen ca. 43 m²) is licht en strak afgewerkt met een laminaatvloer en biedt toegang tot het balkon/loggia. De keuken is geplaatst in 2020 en voorzien van een inductiekookplaat, afzuigkap, vaatwasser en heteluchtoven.
Het appartement beschikt over twee slaapkamers (beide ca. 11 m²), waarvan één met inloopkast en balkondeur. De royale badkamer ligt centraal in het appartement en is bereikbaar vanuit zowel de hal als één van de slaapkamers. De badkamer is uitgerust met een wastafelmeubel met dubbele wasbak, douche en een vrijdragend tweede toilet.

Bijzonderheden
• Bouwjaar: 1980, volledig gerenoveerd in 2020
• Woonoppervlakte: ca. 91 m²
• Energielabel A
• Vloerverwarming aanwezig.
• Balkon op het westen en privé tuin op de begane grond (oostzijde)
• Eigen entree
• Eigen fietsenberging (ca. 10 m²)
• Kleinschalige en actieve VvE
• Servicekosten: ca. € 100,- per maand
• Gelegen nabij centrum, winkels en openbaar vervoer
• Inclusief eigen woningwebsite: www.deventerstraat21.nl

Overdracht

Aanvaarding
In overleg
Vraagprijs
€ 425.000,- k.k.
Vraagprijs per m²
€ 4.670 per m²
Status
Verkocht onder voorbehoud

Bouw

Bouwvorm
Bestaande bouw
Bouwjaar
1980
Dak type
Schilddak
Dak materialen
Pannen

Oppervlakten en inhoud

Woonoppervlakte
91 m2
Buitenruimtes gebouwgebonden of vrijstaand
5 m2
Oppervlakte externe bergruimte
10 m2
PerceelOppervlakte
Inhoud
293 m3

Indeling

Aantal kamers
3 ( 2 slaapkamers)
Aantal badkamers
1
Voorzieningen
Mechanische ventilatie

Energie

Energieklasse
A
Isolatievormen
Dakisolatie, Muurisolatie, Vloerisolatie
Soorten verwarming
CV ketel, Vloerverwarming geheel

Buitenruimte

Liggingen
Aan rustige weg, In centrum
Tuintypen
Achtertuin
Oppervlakte
20 m2
Lengte
500 m
Breedte
400 m
Positie
Oost

Bergruimte

Soort
Vrijstaand steen
Voorzieningen

Garage

Soorten
Geen garage

Parkeergelegenheid

Parkeer faciliteiten
Openbaar parkeren

Geïnteresseerd in deze woning?

Neem vrijblijvend contact met ons op

Plattegrond

Video

Speel video

360°

Kadastraal

Locatie

Geïnteresseerd in deze woning?

Neem vrijblijvend contact met ons op

0572-351291

info@hannink.nl