Weidelaan 170
8103 GA Raalte
€ 395.000,- k.k.
114 m2
166 m2
4
B
De Weidelaan 170: een mooie hoekwoning, die zeer compleet is. Het beschikt over een eigen oprit, veel kamers, mooie achtertuin en een fijne woonkamer met open keuken. Door de rechte gevels, zijn de kamers op de 1e en 2e verdieping ook royaal van opzet. De (slaap)kamer op de 2e verdieping valt tevens op door de vele ramen en het prachtige uitzicht wat je hier hebt. Wat verder in het oog springt is de vrije ligging aan de voorzijde. Je kijkt uit over een openbaar grasveld met speeltuin. Tevens zit het Overijssels Kanaal op loopafstand, waarbij je zo het buitengebied in loopt of fietst.
Indeling
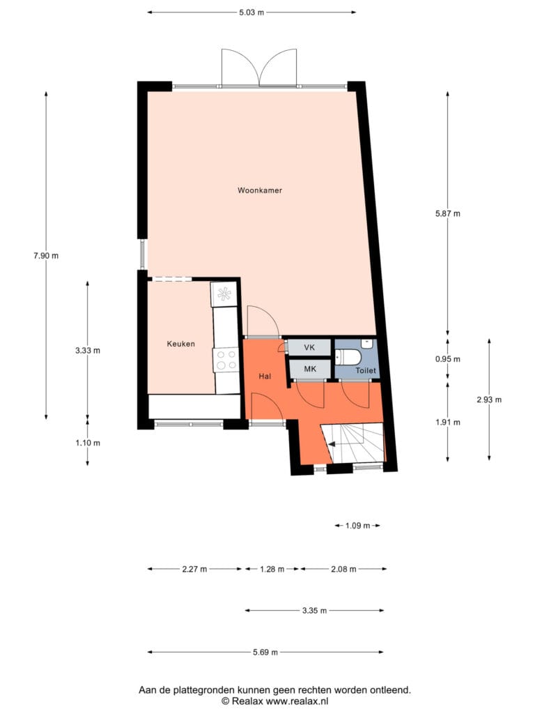
Begane grond
Entree/hal, toegang tot het toilet, meterkast en woonkamer met open keuken. De woonkamer is tuingericht en door het vele glas en de openslaande deuren is er veel connectie tussen binnen en buiten. De keuken is aan de voorzijde gesitueerd en kijkt mooi weg over het grasveldje/speeltuin aan de voorzijde. Het beschikt over diverse inbouwapparatuur: gaskookplaat, oven (2023), koelkast en vaatwasser (2021).
Eerste verdieping
Overloop, toegang tot drie slaapkamers en de badkamer. De badkamer is voorzien van alles wat je van een badkamer mag verwachten: een bad, toilet, douche en wastafel.
Tweede verdieping
Met een vaste trap bereik je deze prachtige open kamer. Ideaal te gebruiken als atelier, vierde slaapkamer of kantoor. Door de vele ramen valt er veel daglicht naar binnen en heb je prachtig uitzicht over de woonwijk. Op deze verdieping is tevens de CV-ketel geplaatst en de opstelling van de wasmachine en droger. De mechanische ventilatie box is recent nog vervangen.
Tuin
We staan graag extra stil bij de tuin. Gelegen op het westen, kan je optimaal genieten van de (avond)zon. Een zonnescherm zorgt voor eventueel gewenste schaduw. Het schuurtje in de achtertuin geeft de nodige opslag voor tuinspullen. Wat verder opvalt is de relatief vrije ligging van de achtertuin, ondanks dat je midden in een woonwijk zit.
Kenmerken
– Woonoppervlakte: circa 114 m²
– Inhoud: circa 388 m³
– Perceeloppervlakte: 166 m²
– Bouwjaar: 1993
– Aanvaarding is in overleg, maar voorkeur voor begin februari 2026.
Overige mooie eigenschappen
– Volledig geïsoleerd (energielabel B);
– Naast je eigen oprit, ook veel openbare parkeerplekken in de buurt;
– In 2024 heeft het schilderwerk een onderhoudsbeurt gehad.
Kortom, een hartstikke fijne en complete woning, gelegen op een mooie locatie in een geliefde woonwijk!
Deze woning heeft een eigen woningwebsite; weidelaan170.nl
Overdracht
- Aanvaarding
- In overleg
- Vraagprijs
- € 395.000,- k.k.
- Vraagprijs per m²
- € 3.465 per m²
- Status
- Beschikbaar
Bouw
- Bouwvorm
- Bestaande bouw
- Bouwjaar
- 1993
- Dak type
- Plat dak
- DakMaterialen
- Soort woonhuis
- Eengezinswoning, Hoekwoning
Oppervlakten en inhoud
- Woonoppervlakte
- 114 m2
- Buitenruimtes gebouwgebonden of vrijstaand
- 0 m2
- Oppervlakte externe bergruimte
- 6 m2
- Perceel oppervlakte
- 166 m2
- Inhoud
- 388 m3
Indeling
- Aantal kamers
- 5 ( 4 slaapkamers)
- Aantal badkamers
- 1
- Voorzieningen
- Mechanische ventilatie, Buitenzonwering
Energie
- Energieklasse
- B
- Isolatievormen
- Dakisolatie, Muurisolatie, Vloerisolatie, Dubbelglas, Volledig geïsoleerd
- Soorten verwarming
- CV ketel
Buitenruimte
- Liggingen
- In woonwijk
- Tuintypen
- Achtertuin, Voortuin, Zijtuin
- Oppervlakte
- 69 m2
- Lengte
- 1.150 m
- Breedte
- 600 m
- Positie
- West
Bergruimte
- Soort
- Vrijstaand hout
- Voorzieningen
Garage
- Soorten
- Geen garage
Parkeergelegenheid
- Parkeer faciliteiten
- Op eigen terrein
Geïnteresseerd in deze woning?
Neem vrijblijvend contact met ons op
Locatie
Geïnteresseerd in deze woning?
Neem vrijblijvend contact met ons op
0572-351291
info@hannink.nl