Raalterweg 12
8124 AD Wesepe
€ 425.000,- k.k.
96 m2
578 m2
4
G
Charmante vrijstaande woning met prachtig uitzicht op de weilanden en nabij invalswegen
Bent u op zoek naar een unieke plek om te wonen, midden in het groen en toch dicht bij alle voorzieningen? Aan de rand van het fraaie buitengebied van Wesepe, met uitzicht over de weilanden, bieden wij met veel plezier deze vrijstaande woning aan. Een heerlijke plek voor iedereen die rust en ruimte zoekt, maar toch binnen 10 autominuten in het bruisende centrum van Deventer staat. Ook Raalte en Olst liggen op korte afstand.
De woning ligt aan een rustige weg, waardoor u altijd verzekerd bent van een fijne thuiskomst. Hier geniet u van vrijheid, natuur en tegelijkertijd de warmte van het noaberschap.
Daarnaast bevindt zich op korte afstand het bosrijke Landgoed de Kranenkamp, waar u kunt wandelen, Abdij Nieuw Sion kunt bezoeken en kunt afsluiten met een hapje of drankje bij NuNu Food & Drinks.
Indeling
Begane grond
Entree met granito vloer, toegang tot de kelder, trapopgang en meterkast. Ruime, zonnige woonkamer met vaste kasten en een erker (uitbouw 2002) die zorgt voor veel lichtinval en zicht op de levendige omgeving. De gesloten keuken (uitgebouwd in 1988) heeft een achterdeur en voldoende ruimte voor een eettafel. De badkamer is voorzien van een bad, wastafel en toilet. Tevens bevindt zich op de begane grond een extra slaap-/ werkkamer.
Verdieping
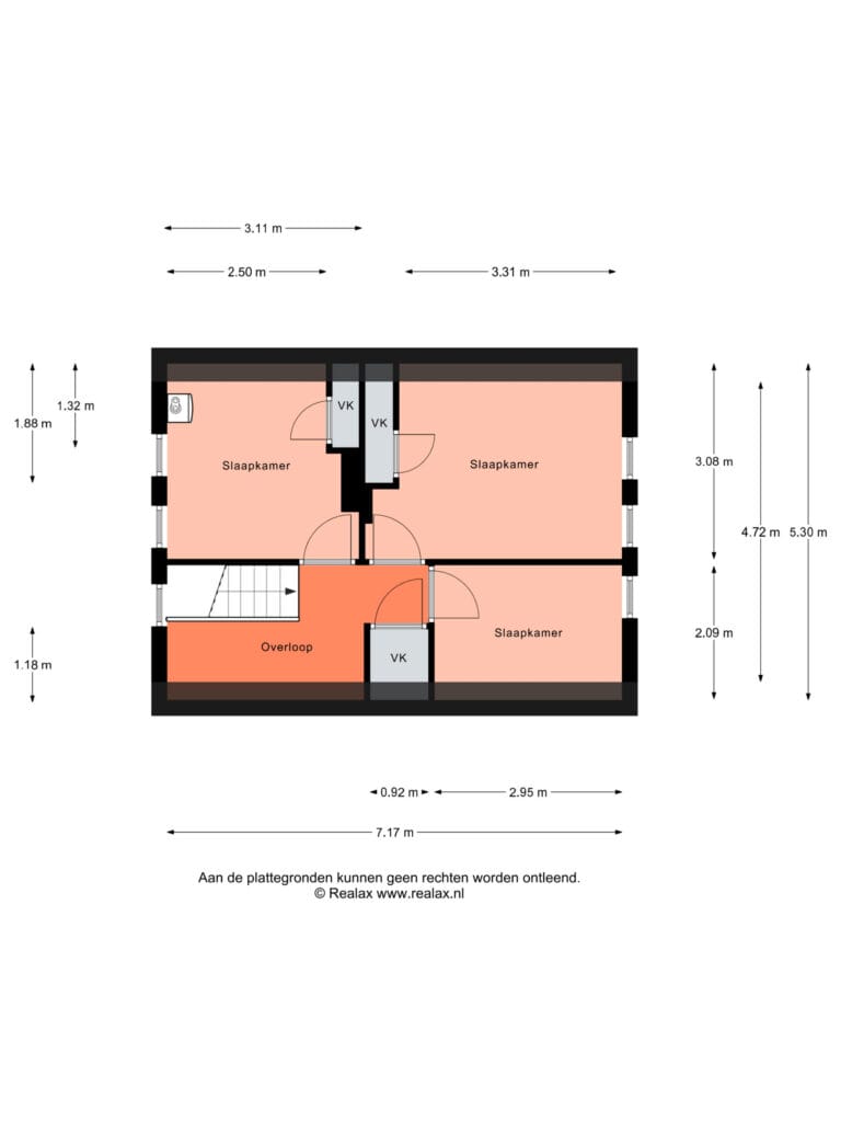
Overloop, drie slaapkamers en een luik naar de bergruimte in de nok van de woning.
Bijgebouw
De vrijstaande garage/schuur (ca. 6 x 6,25 m: 37 m²) is in 1986 opnieuw opgetrokken en verdeeld in twee compartimenten. Een ideale ruimte voor opslag, stalling of hobby’s.
Tuin
De zonnige tuin op het zuidoosten biedt meerdere terrassen en vrij zicht op de omgeving. Daarnaast beschikt u over extra grond naast de woning, ideaal voor een speelveld, moestuin of het planten van fruitbomen.
Kenmerken
• Bouwjaar circa 1953, uitgebouwd in 1988 en 2002
• Kavelgrootte 578 m²
• Inhoud ca. 399 m³
• Woonoppervlakte ca. 96 m²
• Vrijstaande garage/schuur met keukenblokje, ca. 37 m²
• Royale woonkamer met erker en vaste kasten
• Gesloten keuken met ruimte voor eettafel
• 4 slaapkamers (waarvan 1 op de begane grond die uiteraard ook in te zetten is als werkkamer)
• Geheel voorzien van dubbele beglazing, kunststof kozijnen in de woonkamer
• CV-combiketel
Meer weten?
Deze woning heeft een eigen website: www.raalterweg12.nl
Overdracht
- Aanvaarding
- In overleg
- Vraagprijs
- € 425.000,- k.k.
- Vraagprijs per m²
- € 4.427 per m²
- Status
- Beschikbaar
Bouw
- Bouwvorm
- Bestaande bouw
- Bouwjaar
- 1953
- Dak type
- Zadeldak
- Dak materialen
- Pannen
- Soort woonhuis
- Eengezinswoning, Vrijstaande woning
Oppervlakten en inhoud
- Woonoppervlakte
- 96 m2
- Buitenruimtes gebouwgebonden of vrijstaand
- 0 m2
- Oppervlakte externe bergruimte
- 34 m2
- Perceel oppervlakte
- 578 m2
- Inhoud
- 399 m3
Indeling
- Aantal kamers
- 5 ( 4 slaapkamers)
- Aantal badkamers
- 1
- Voorzieningen
- TV kabel, Rookkanaal, Natuurlijke ventilatie
Energie
- Energieklasse
- G
- Isolatievormen
- Dubbelglas
- Soorten verwarming
- CV ketel
Buitenruimte
- Liggingen
- Aan rustige weg, Vrij uitzicht, Open ligging, In bosrijke omgeving, Landelijk gelegen
- Tuintypen
- Achtertuin, Voortuin, Zijtuin
- Oppervlakte
- 396 m2
- Lengte
- 2.200 m
- Breedte
- 1.800 m
- Positie
- Oost
Garage
- Soorten
- Vrijstaand steen
Parkeergelegenheid
- Parkeer faciliteiten
- Op eigen terrein
Geïnteresseerd in deze woning?
Neem vrijblijvend contact met ons op
Locatie
Geïnteresseerd in deze woning?
Neem vrijblijvend contact met ons op
0572-351291
info@hannink.nl